Skip to main content
Categories
< All Topics
Print

Why do I need to disconnect the control transformer as per installation checkout procedure on 4000 series load bank equipped with Control Power Transformer?

Installation Checkout Procedure needs to be complied before the full operation of the load bank. This can be found in the manual.

One of the procedures is to remove the CPT.

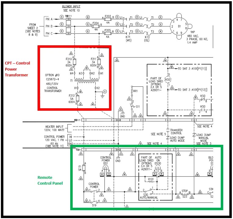
Some may be wondering why is this needed whereas if we removed the CPT, the remote control panel won’t have a source to draw power from. Refer to the sample schematic of a 4100 load bank model below.

The purpose of this procedure is to make sure that the control transformer output is within ±10% from 120V as per the example above. More than 10% may damage the control circuit of the load bank.

If for some reason, the control transformer fails to output the required 120V, you have an option to externally power the remote control panel. You just have the provide 120Vac on TB1-1 and TB1-2 of the remote control panel.

Load Banks In Stock & Ready to Ship

Skip to content